top of page

HOME EXTENSION BUILDING DESIGN IN RICHMOND
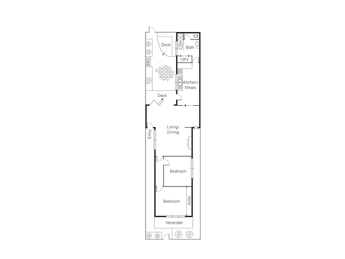
Take a look at this remarkable two-story home extension transformation in Richmond.
When our client approached us with a vision for a second-level home extension in Richmond, we were keen to embark on this transformative journey with them. Our design was centred around constructing an upper floor that flawlessly melded with their existing structure, capturing the unique nuances of their family and lifestyle. Beyond simply taking their ideas on board, we infused the project with modern design elements they might not have envisioned, elevating their residence to new heights—both literally and figuratively. View the photos of this two-tiered architectural triumph below.

bottom of page










































